


点点taptapstore
线上线下同步的商厨工程服务商
全国免费服务热线:
134-1596-7896
400-888-4168
taptap点点厨房工程
线上线下同步的商厨工程服务商
设备配套 | 价格透明 | 上门勘察 | 专属设计 | 轻松过检 | 快速报价 | 风水布局
油烟是厨房烹饪中常见的污染物,在商用厨房中油烟净化除味工程是必不可少的一道工序,这是因为任何餐厅,饭堂,酒店等商业餐饮场所在运营厨房之前都必须经过政府环保部门的废气排放检测,只有达到排放标准才能正式运营。
在厨房运营的过程中会产生大量的油烟,如果缺乏强力的油烟净化功能会导致厨房滞留大量的油烟,影响厨师的烹饪,损害菜品出品品质,严重甚至影响顾客用餐。
没经过油烟净化除味的废气在排放后会导致大范围覆盖,严重影响附近住户的生活环境还会造成严重的人身健康影响,很容易导致报警投诉,轻则警告整顿,重则终止营业并接受行政处罚,因此油烟净化除味工程是所有商用厨房必须搭配油烟净化厨房工程。

八吉星油烟净化除味工程可根据客户厨房具体情况,工程预算规划,当地政府环保排放标准进行全方位设计,施工,净化设备配套,运行测试及环保检测流程协助。
八吉星旗下拥有直属油烟净化除味设备生产线,并与多家知名商厨净化品牌达成合作,提供设备配套服务,囊括入门级乃至高端商厨设备配套,满足不同用户的需求。
|
|
|
|
|
taptap点点专注油烟净化除味工程,打造专属于您的油烟净化除味工程
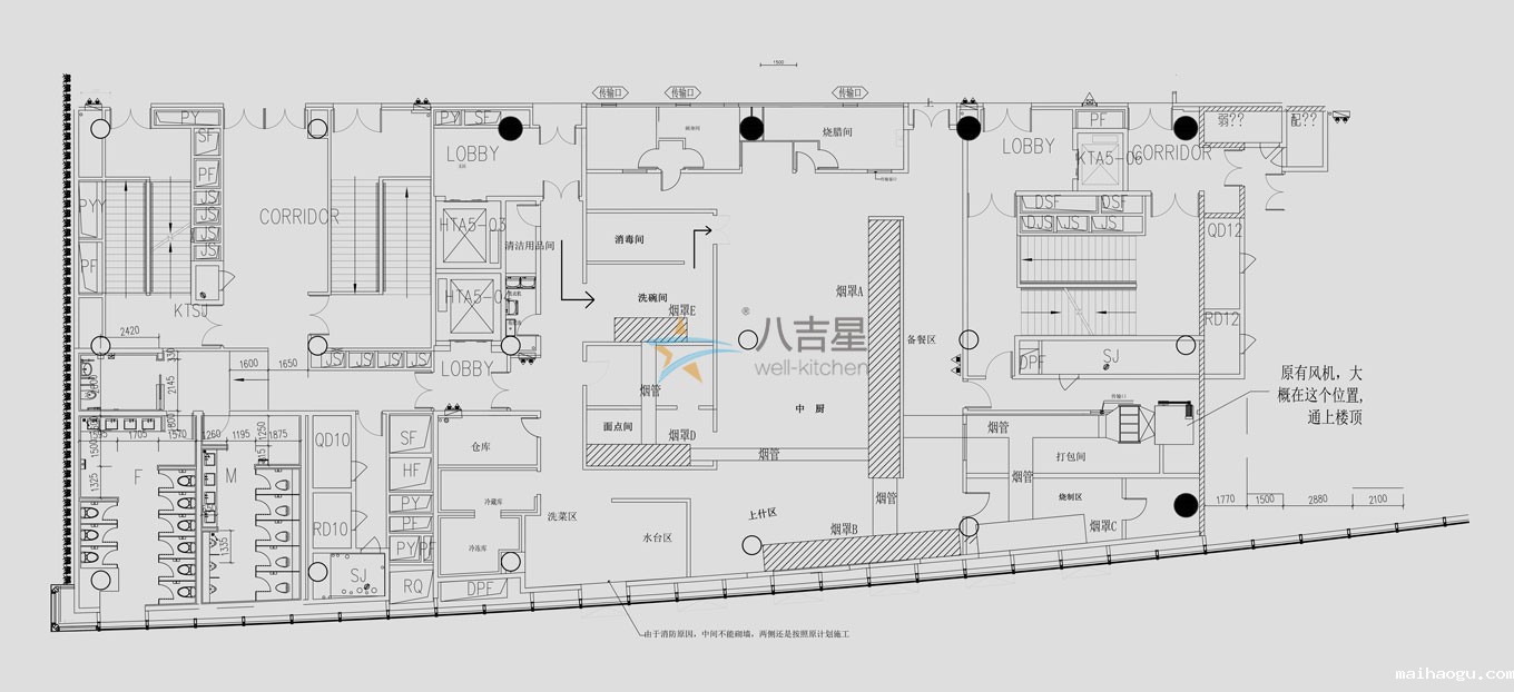
八吉星厨房工程师亲临现场,获取客户具体需求以及工程现场基本参数,提供工程设计,施工,设备配套,安装,检测,过检协助,售后服务一站式油烟净化除味工程解决方案。


八吉星会厨房工程师亲临现场对客户需求及工程现场进行基本资料获取,根据具体需求和现场情况进行油烟净化除味工程设计,不管是毛坯还是已完成装修均可满足您的需求。

八吉星油烟净化除味工程在接受政府检测的过程中会提供全程协助和调整,直到整个油烟工程通过检测。

八吉星以全国连锁厨房工程公司而努力,标准化工程服务,在各大重点城市开设服务网点,为周边客户提供优质工程服务,联合多家专业商厨设备工程师及厨房工程师上门服务,全程无缝对接,精确掌握客户需求,迅速响应用户售后问题,降低由于设备问题导致的经营损失。

全国统一服务体验,工厂直供厨房设备配套,商用厨房工程解决方案服务商
直属厨具设备生产厂家及研发基地,实现价格同步,价格透明可查。
全国各地设有办事处,快速响应客户厨房工程需求上门服务。
专业厨房工程师最快24小时内完成商用厨房工程设计平面图。
taptap点点最快48小时内快速提供厨房工程及设备报价清单。
taptap点点全国连锁式厨房工程公司模式提供全国统一售后服务体验。
以倡导商用厨房运作新模式、引领商用厨房科技导向为己任,做客户身边可信赖的服务商。
其前身为广东明宝厨房工程设备有限公司成立于2012年,从单一厨房工程公司逐步成为一个全产业链化的综合型公司,为配合发展,于2020年整合明宝厨房工程,2024年整合八吉星厨房工程设备业务,线上销售业务、线下代理商渠道为taptap点点。
相对于其他厨房工程公司,taptap点点具有独特的互联网+基因。在2013年即启动电商营销团队。并携手多家专业商用厨房设备品牌,并且连续5年全网销量第一。
您的基本数据有助于我们的设计师快速设计工程平面图及报价清单
我们需要根据您的厨房面积,为您的厨房设计功能性布局图。
我们需要根据您厨房的用餐人数,对您的厨房进行针对性地设计。
我们需要了解您厨房每天的开餐次数,为您的厨房设备设计提供参考。
我们需要提供给我们您食堂的标准定为:豪华的?普通的?大型的?小型的?
用户是企业发展的源泉。
优质产品,是走向世界的桥梁。
保证质量,是对社会的承诺。
用心服务
我用心 您放心
taptap点点厨房工程用心践行,走好每一步,让客户安心。
通过咨询或填写表单,预约免费上门勘察
专业工程团队免费上门勘察,客户需求采集
根据客户需求以及现场考察,快速设计出稿
根据客户需求出稿后待客户确认设计图纸
专业施工团队,全程由工程负责人监督
配套厨房设备定制完成后,有序运送进场
双方达成设计及工程服务共识,签订合同
根据确认图纸及配套设备48小时快速报价
专业检测人员对整套厨房设备进行全面试运营
施工完成,试运营没问题后,供客户验收
进入正式运营,taptap点点专业团队前期运营指导
厨房工程出现问题,均有专业人员上门服务
点点taptapstore
线上线下同步的商厨工程服务商
全国免费咨询热线:
400-888-4168
手机:134-1596-7896
联系人:谭经理
地址:广东省东莞市虎门镇虎越湾区一号5栋三楼
工程方案: