东莞大岭山第二小学位于广东省东莞市大岭山镇金桔村委会育才路1号,校园占地面积约33179.40平方米,生均占地26.87平方米,建筑面积约23145.5多平方米,生均建筑面积18.74平方米,绿化覆盖率达95%,是一家环境优美,绿草如茵,学习氛围浓厚,是一家市重点公办小学。
八吉星商厨设备工程有限公司(原明宝)有幸得到东莞大岭山第二小学的认可,承接该小学学校食堂厨房的工程任务,八吉星根据食堂的面积,烹饪流程进行厨房设计,采用电磁设备,降低厨房工作环境的噪音,温度以及每次烹饪的费用,提升烹饪效率。
厨房工程运营照片:

东莞大岭山第二小学食堂厨房烹饪区

东莞大岭山第二小学厨房食材清洗区

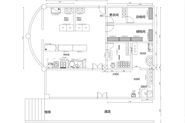
东莞大岭山第二小学食堂厨房平面设计图
八吉星专业承接学校食堂厨房工程,拥有专业的食堂厨房设计工程师,如果您有食堂厨房工程的需求,不妨联系八吉星,我们会安排专业的工程师上门为您服务。




